Пн–Вс:
Ваш регион:

← Вернуться ко всем проектам

Проект дома №1 — проект каркасного дома

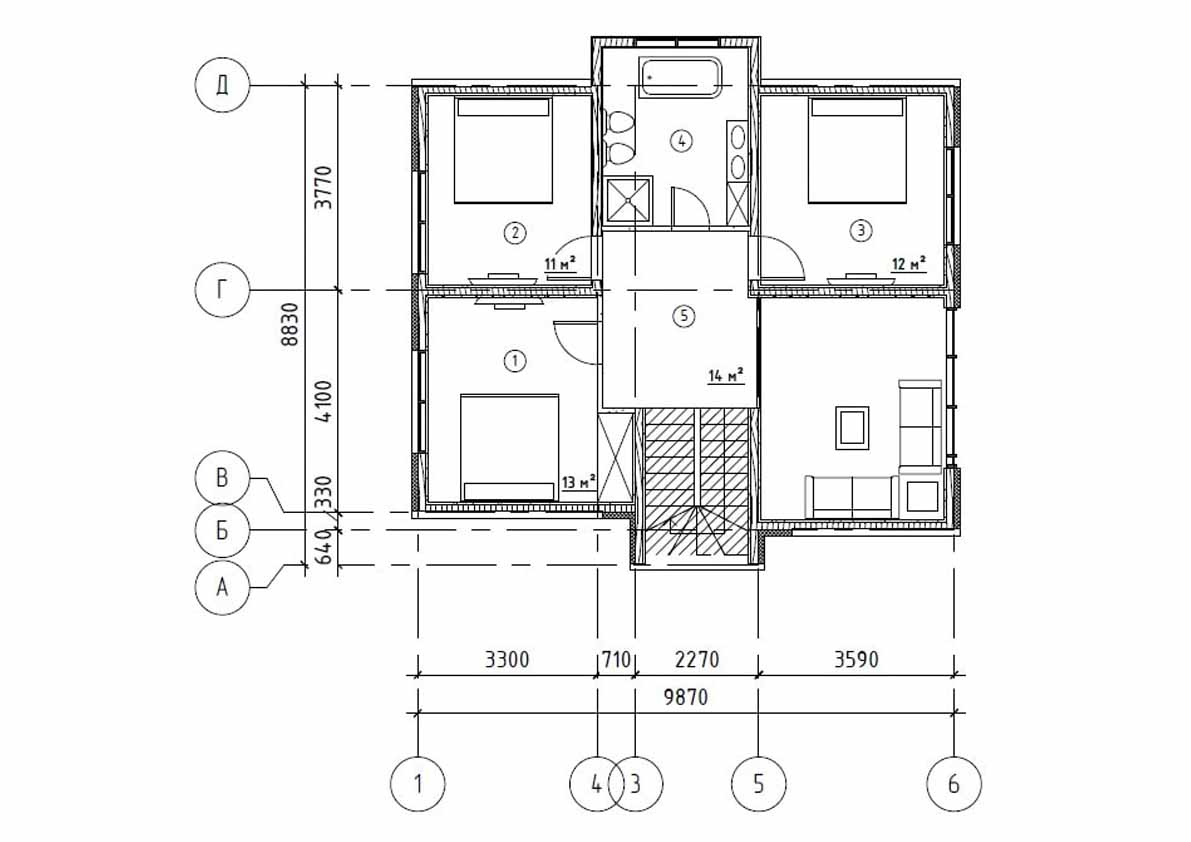
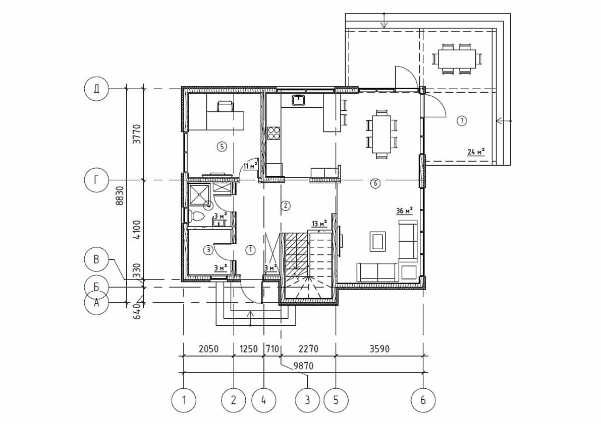
Современный двухэтажный коттедж площадью 163,3 м², рассчитан на комфортное проживание большой семьи. Планировка включает 7 комнат — просторные спальни, общую зону для отдыха и работы, и витиеватую террасу для вечерних посиделок. Проект специально разработан для оперативного строительства — при заказе «под ключ» вы получите готовый дом за ~45 дней. Это оптимальное решение для тех, кто ценит сочетание скорости возведения и продуманной планировки.

Важная информация о стоимости

Указанные цены носят ориентировочный характер и зависят от выбранных материалов, региона строительства и дополнительных опций. Итоговая стоимость рассчитывается после уточнения всех параметров и подготовки детального коммерческого предложения.

  • Цены не включают отделку и мебель;
  • Допускаются изменения планировок, материалов, инженерных систем;
  • Перечень работ зависит от выбранного пакета (фундамент, инженерные сети, отделка и т.д.);
  • Стоимость монтажа отдельных этапов рассчитывается дополнительно;
  • Доступна разработка индивидуальных решений под ваши задачи;
  • Возможна корректировка под климатические, региональные и архитектурные требования;
  • Актуальность условий подтверждается коммерческим предложением.

Свяжитесь с нами через форму заявки, оставьте контакты и мы подготовим точный расчёт именно для вашего проекта.