Пн–Вс:
Ваш регион:

← Вернуться ко всем проектам

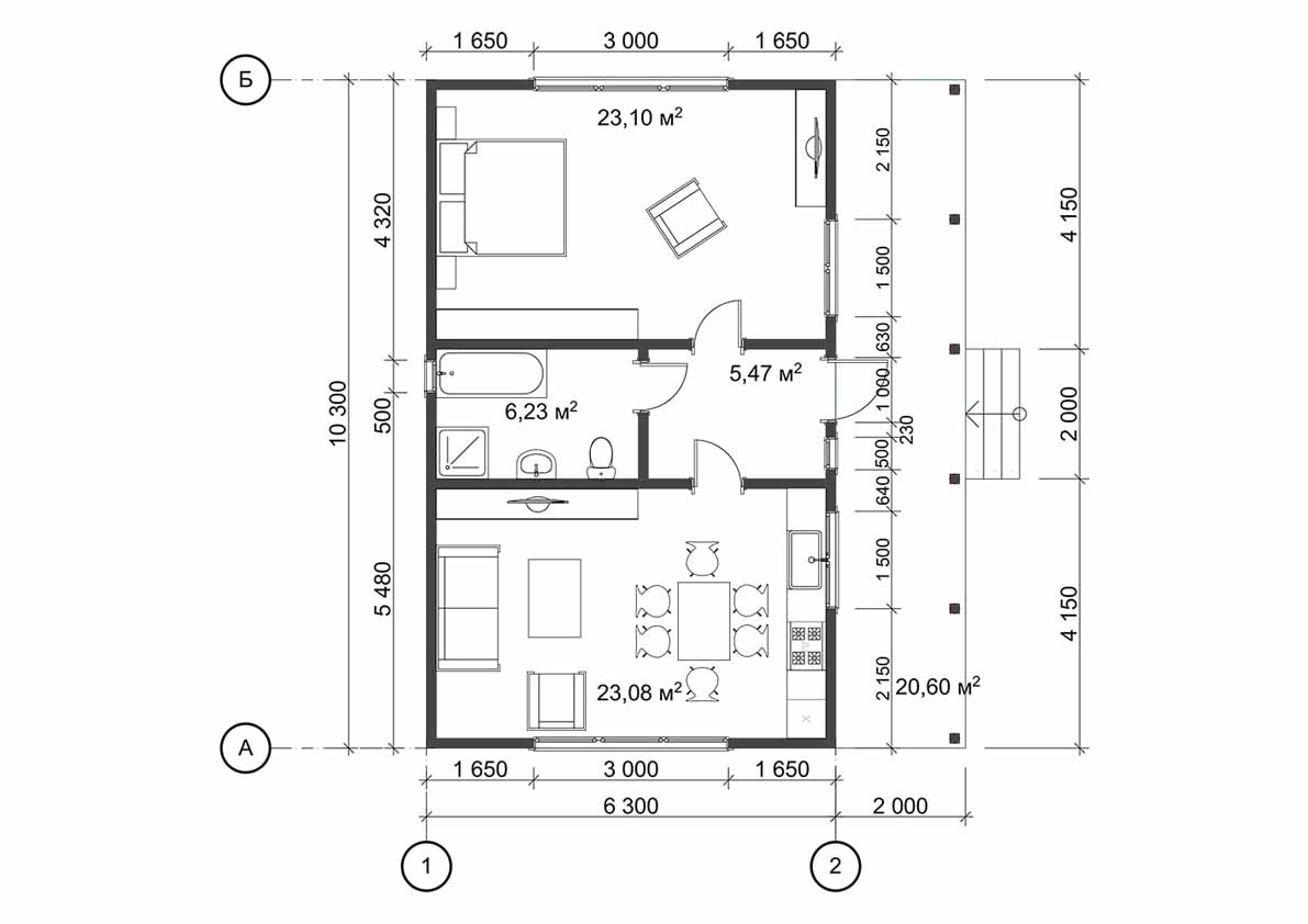
Проект дома №4 — проект каркасного дома

Компактный и бюджетный одноэтажный дом площадью 57,88 м², с 2 комнатами — оптимален как дачный домик, гостевой коттедж или база для небольшого жилья. Проект отличается энергоэффективностью и рациональным использованием каждого квадратного метра. Простота конструкции обеспечивает быстрое возведение — около 30 дней. Хороший вариант для тех, кто хочет недорогой, но надёжный дом с минимальной площадью.

Важная информация о стоимости

Указанные цены носят ориентировочный характер и зависят от выбранных материалов, региона строительства и дополнительных опций. Итоговая стоимость рассчитывается после уточнения всех параметров и подготовки детального коммерческого предложения.

  • Цены не включают отделку и мебель;
  • Допускаются изменения планировок, материалов, инженерных систем;
  • Перечень работ зависит от выбранного пакета (фундамент, инженерные сети, отделка и т.д.);
  • Стоимость монтажа отдельных этапов рассчитывается дополнительно;
  • Доступна разработка индивидуальных решений под ваши задачи;
  • Возможна корректировка под климатические, региональные и архитектурные требования;
  • Актуальность условий подтверждается коммерческим предложением.

Свяжитесь с нами через форму заявки, оставьте контакты и мы подготовим точный расчёт именно для вашего проекта.